why “the loom”
The origin of Munford, Tennessee is traced back to cotton and cattle farming. The settlement was established around 1840 by the Mt. Zion Methodist circuit meeting house (traveling Methodist church) and the community built up to serve the families carrying out that work.
Today, the town is rooted in faith and family as a bedroom community to Memphis. This redevelopment with retail and restaurant uses on the main level and office space above will act as infrastructure upon which community connections thrive.
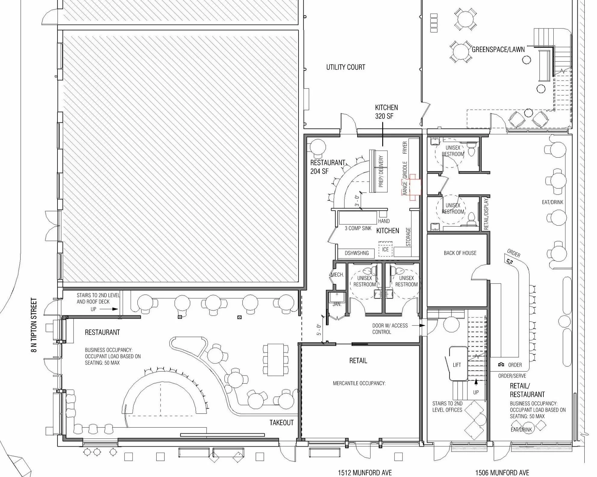
ground level
being located at the corner of downtown Munford, Tennessee, and across the street from the town’s amphitheater, the main level of the loom will offer destination retail and food service uses. there are 3 spaces available:
8 N Tipton Road : 2,500 SF
1512 Munford Avenue : 450 SF
1506 Munford Avenue : 1,300 SF
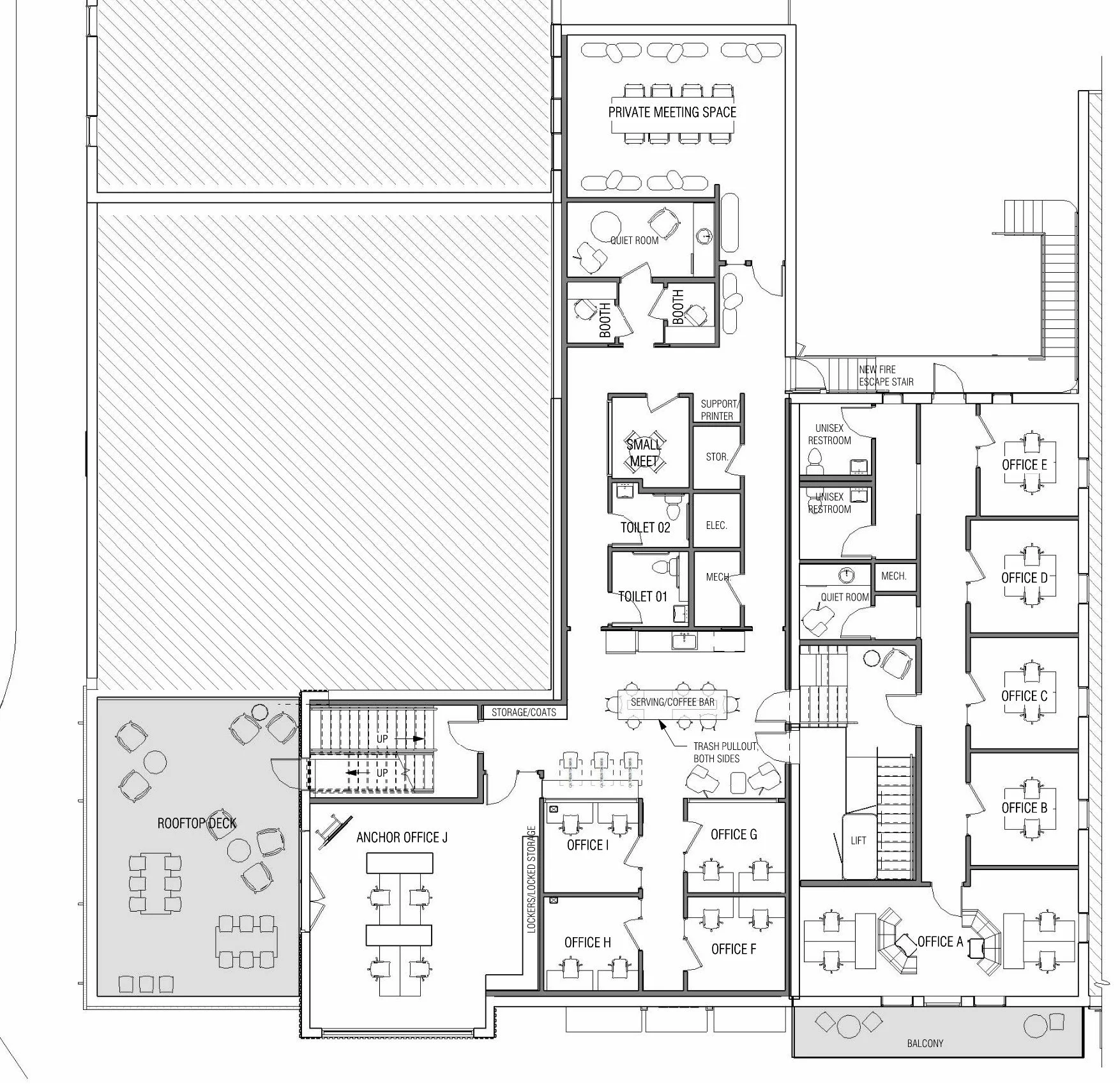
upper level
while reserving the main level for active public retail and restaurant uses, the loom work club is located on the upper level. during phase 01 of the project, there is a main level entry with a collaboration/informal meeting area, and the remaining spaces on the upper level: landing with seating area, main work lounge, private meeting room, 2 restrooms, conference room, lockable storage as needed, and a balcony overlooking Munford Avenue.
when phase 02 is complete, meeting rooms both large and small, along with private workspaces will be available.

